SIMON Shaldon Property Features FLOORPLAN RES
Chapel Hill, Wakefield, HD8 9NH
- 0
Key features
Guide Price: *
£480,000
Fees apply
Buyer's fee:4.2% (min. £6,000)
All fees include VAT at 20%
Auction Type:
† Traditional
Start price:
£475,000Bid history
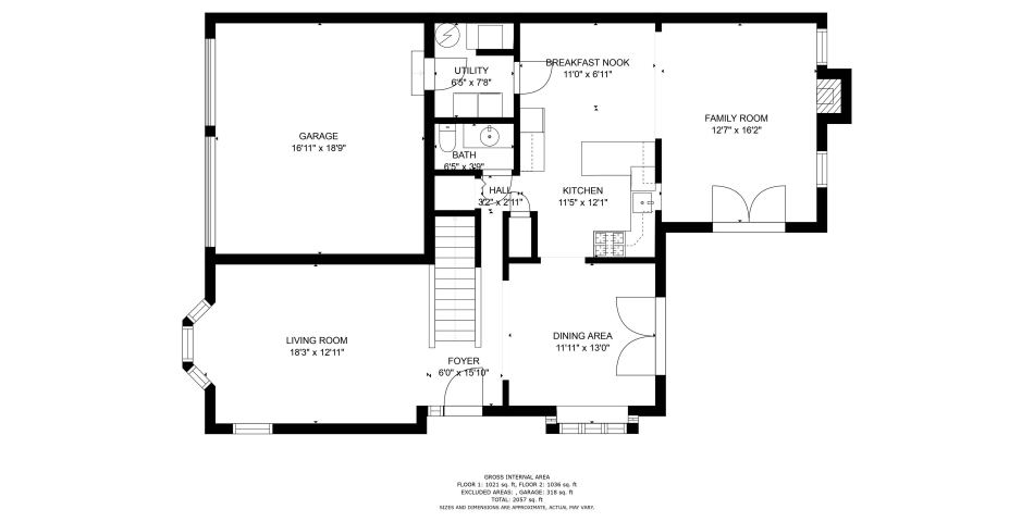
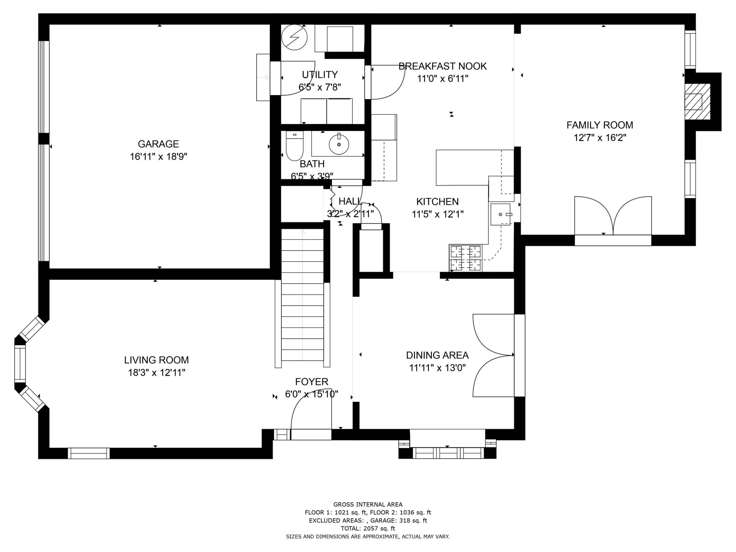
0 bidsA RARE OPPORTUNITY! … SET IN A PRIVATE LITTLE KNOWN CUL DE SAC, ONE OF ONLY FOUR INDIVIDUALLY DESIGNED PROPERTIES, IS THIS VERSATILE, FOUR DOUBLE BEDROOM DETACHED HOME. THE PROPERTY IS SET OVER TWO FLOORS, THE MAIN LIVING ACCOMMODATION BEING ON THE FIRST FLOOR TAKING ADVANTAGE OF THE IMPRESSIVE PANORAMIC VIEWS TOWARDS EMLEY MOOR.
GROUND FLOOR
A composite double glazed entrance door opens into a reception hallway, having a tiled floor, exposed stone feature and a side facing window. There is inset spot lighting and steps lead to the main entrance hallway. The ground floor hallway gives access to the over sized double garage, two useful storage cupboards, two bedrooms, the downstairs bathroom and utility room. Bedroom two is a front facing double room, having two double glazed windows, a radiator and inset spot lighting. Bedroom three is a front facing double room, having two double glazed windows, a radiator, inset spot lighting and a double fitted wardrobe.
A RARE OPPORTUNITY! … SET IN A PRIVATE LITTLE KNOWN CUL DE SAC, ONE OF ONLY FOUR INDIVIDUALLY DESIGNED PROPERTIES, IS THIS VERSATILE, FOUR DOUBLE BEDROOM DETACHED HOME. THE PROPERTY IS SET OVER TWO FLOORS, THE MAIN LIVING ACCOMMODATION BEING ON THE FIRST FLOOR TAKING ADVANTAGE OF THE IMPRESSIVE PANORAMIC VIEWS TOWARDS EMLEY MOOR.
GROUND FLOOR
A composite double glazed entrance door opens into a reception hallway, having a tiled floor, exposed stone feature and a side facing window. There is inset spot lighting and steps lead to the main entrance hallway. The ground floor hallway gives access to the over sized double garage, two useful storage cupboards, two bedrooms, the downstairs bathroom and utility room. Bedroom two is a front facing double room, having two double glazed windows, a radiator and inset spot lighting. Bedroom three is a front facing double room, having two double glazed windows, a radiator, inset spot lighting and a double fitted wardrobe.
Summary
- Property type
- Detached
- Tenure
- Leasehold
- Bedrooms
- 2
- Bathrooms
- 3
- Council tax band
- B
Guide Price: *
£480,000
Fees apply
Buyer's fee:4.2% (min. £6,000)
All fees include VAT at 20%
Auction Type:
† Traditional
Start price:
£475,000Bid history
0 bidsSummary
- Property type
- Detached
- Tenure
- Leasehold
- Bedrooms
- 2
- Bathrooms
- 3
- Council tax band
- B
This property is being sold by:

Bradleys - Shaldon
**REDACTED**
**REDACTED**
†Traditional auction
Exchange occurs at the end of the auction. This means that if the reserve is met or exceeded and the auction timer reaches zero, the successful bidder is legally obliged to pay the purchase price and the seller will be legally obliged to sell the property. To ensure that the successful bidder proceeds, the buyer is automatically charged a holding deposit, which is held in a secure client account, pursuant to the terms of a holding deposit agreement.
* Pricing Information
The Guide Price amount specified is an indication of each seller's minimum expectation. It is not necessarily the amount at which the property will sell. Each property will be offered subject to a Reserve (a figure below which the property will not be sold) which we expect will be set no more than 10% above the Guide Price amount.
Bamboo Proptech and Bradleys Online Auction shall not be liable for any inaccuracies in the fees stated on this description page, in the bidding confirmation pop up or in the particulars. Buyers should check the contents of the legal pack and special conditions for accurate information on fees. Where there is a conflict between the fees stated in the particulars, the bid information box above or the bidding confirmation pop up and the contents of the legal pack, the contents of the legal pack shall prevail.
Stamp Duty Land Tax or Land and Buildings Transaction Tax may also apply in some circumstances.
Refreshing the Page
To make sure that you are seeing the latest information for the property, we recommend you refresh the page. This ensures you're seeing live information and not stored (cached) data. If the page disconnects from the Internet, refreshing the page will show the latest information.
Disclaimer
All information relating to this property, including descriptions, pictures and other related information has been provided by Bradleys Online Auction. All legal documents in relation to this property have been provided by the Vendor's solicitor. Neither Bamboo Proptech or any individual in employment with Bamboo Proptech makes any warranty as to the accuracy or completeness of any of the property information.
These particulars do not form part of any contract or offer. Buyers should not rely on them as statements of representation and should check that the information is correct by inspection or otherwise. Where there is a conflict between the contents of the legal documents and these particulars, the information contained in the legal documents shall prevail.




