FOR SALE VIA BRADLEYS ONLINE AUCTION 12PM 6TH SEPTEMBER 2024.
Cuddenbeake terrace, Saltash, PL12 5LZ
- 0
Key features
Guide Price: *
£275,000
Fees apply
Reservation fee:4.2% (min. £6,000)
All fees include VAT at 20%
Auction Type:
† Conditional
Opening bid:
£275,000Bid history
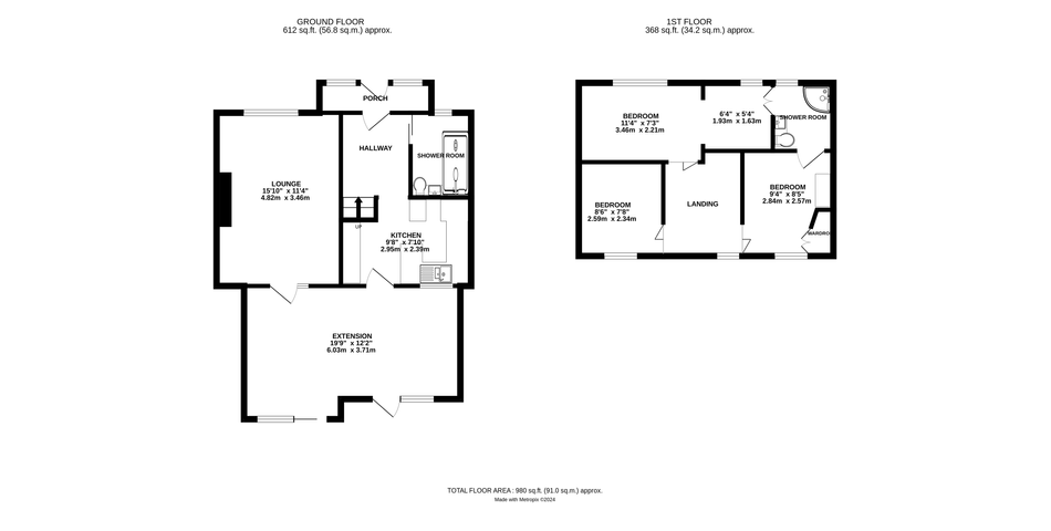
0 bidsThis property is for sale by conditional online auction, powered by Bamboo Auctions. Place a bid on www.bradleys-online-auctions.co.uk by 12pm on 6th September 2024. This mid terraced house has recently been extended but requires completion. Accommodation comprises lounge, downstairs shower room, fitted kitchen, three bedrooms and a shower room. uPVC double glazing.
This property is for sale by conditional online auction, powered by Bamboo Auctions. Place a bid on www.bradleys-online-auctions.co.uk by 12pm on 6th September 2024. This mid terraced house has recently been extended but requires completion. Accommodation comprises lounge, downstairs shower room, fitted kitchen, three bedrooms and a shower room. uPVC double glazing.
Summary
- Auction end
- 6th Sep at 11:00
- Property type
- Terraced
- Tenure
- Freehold
- Bedrooms
- 3
- Bathrooms
- 2
- Council tax band
- Ask Agent
Guide Price: *
£275,000
Fees apply
Reservation fee:4.2% (min. £6,000)
All fees include VAT at 20%
Auction Type:
† Conditional
Opening bid:
£275,000Bid history
0 bidsSummary
- Auction end
- 6th Sep at 11:00
- Property type
- Terraced
- Tenure
- Freehold
- Bedrooms
- 3
- Bathrooms
- 2
- Council tax band
- Ask Agent
This property is being sold by:

Bradleys - Saltash
**REDACTED**
**REDACTED**
†Conditional auction
If the reserve is met or exceeded and the auction timer reaches zero, an exclusivity period begins in relation to that property. The successful bidder is contractually required to exchange on the property on or before the expiry of 20 working days from the end of the auction (unless otherwise stated in the "Other Key Info" section in the listing above). All properties sold by conditional auction are sold subject to a reservation fee which is clearly stated in the terms and conditions attached to the property and in the bidding box before a bid is placed. The reservation fee is payable in addition to the final purchase price and is received on a non-refundable basis, subject to the terms of the Reservation Agreement. To ensure that the successful bidder proceeds, the winning buyer is automatically charged a reservation fee and agrees prior to making their bid, to pay any outstanding amount of the property reservation fee immediately at the end of the auction. The auctioneer will be authorised to sign the reservation agreement on both the buyer’s and seller’s behalf. If by the seller’s act, exchange does not occur on or before the expiry of 20 working days from the end of the auction (unless otherwise stated in the "Other Key Info" section in the listing above), the reservation fee shall be fully refunded to the buyer. If the buyer fails to exchange on or before the expiry of 20 working days from the end of the auction (unless otherwise stated in the "Other Key Info" section in the listing above), they will forfeit the full amount of the reservation fee.Fees paid to the Auctioneer may be considered as part of the chargeable consideration for the property and be included in the calculation for stamp duty liability. Further clarification on this must be sought from your legal representative.
* Pricing Information
The Guide Price amount specified is an indication of each seller's minimum expectation. It is not necessarily the amount at which the property will sell. Each property will be offered subject to a Reserve (a figure below which the property will not be sold) which we expect will be set no more than 10% above the Guide Price amount.
Bamboo Proptech and Bradleys Online Auction shall not be liable for any inaccuracies in the fees stated on this description page, in the bidding confirmation pop up or in the particulars. Buyers should check the contents of the legal pack and special conditions for accurate information on fees. Where there is a conflict between the fees stated in the particulars, the bid information box above or the bidding confirmation pop up and the contents of the legal pack, the contents of the legal pack shall prevail.
Stamp Duty Land Tax or Land and Buildings Transaction Tax may also apply in some circumstances.
Refreshing the Page
To make sure that you are seeing the latest information for the property, we recommend you refresh the page. This ensures you're seeing live information and not stored (cached) data. If the page disconnects from the Internet, refreshing the page will show the latest information.
Disclaimer
All information relating to this property, including descriptions, pictures and other related information has been provided by Bradleys Online Auction. All legal documents in relation to this property have been provided by the Vendor's solicitor. Neither Bamboo Proptech or any individual in employment with Bamboo Proptech makes any warranty as to the accuracy or completeness of any of the property information.
These particulars do not form part of any contract or offer. Buyers should not rely on them as statements of representation and should check that the information is correct by inspection or otherwise. Where there is a conflict between the contents of the legal documents and these particulars, the information contained in the legal documents shall prevail.



